A beautiful and peaceful place to heal
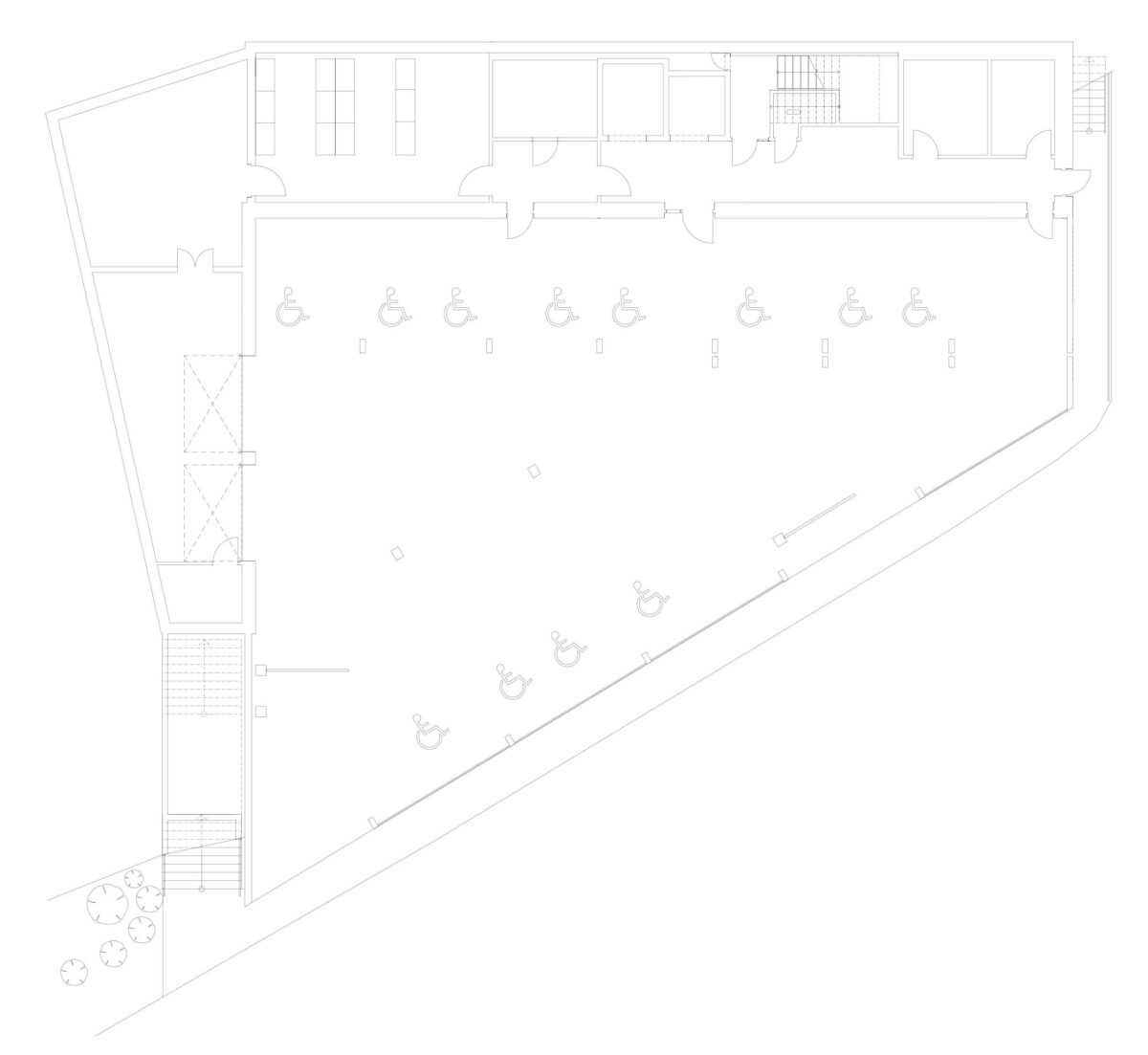
The protected housing facility located in the town of Prachatice is a unique project that combines two essential aspects: exceptional architecture and meaningful purpose, aimed at supporting people in difficult life situations. Guests in wheelchairs will find not only safe accommodation here but also the necessary support to reintegrate into everyday life — they can stay at the facility until they are able to live independently with their disability.
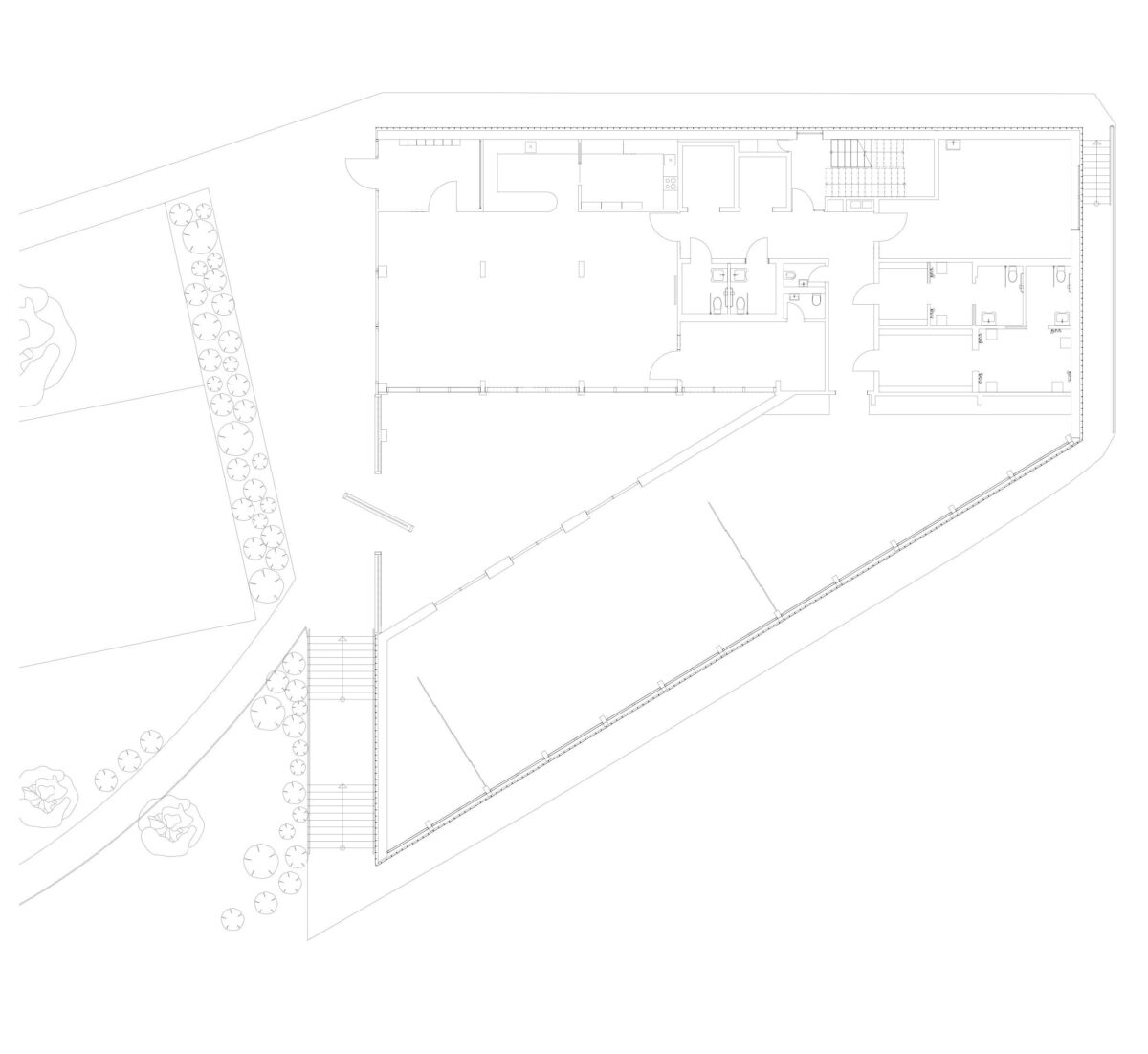
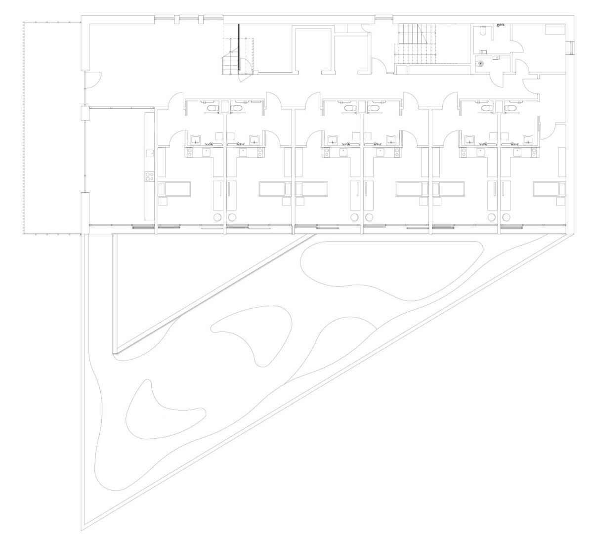
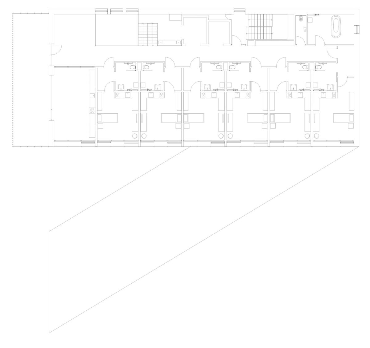
The building also features a gym, a common room, an atrium, and a café. Its airy, light-filled spaces create a fresh and welcoming atmosphere throughout the complex. A rooftop terrace, full of greenery and flowers, adds to the healing environment. An elegant and vibrant element of the project is the footbridge that connects the rooftop garden with the residential area.


















